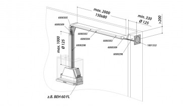
Система 125Приобретая отводной комплект, вы получаете практически все компоненты для монтажа системы воздухоотвода: каналы, Активный клапан, уплотнитель. Схема монтажа прилагается.
Выводной комплект Set I с круглыми каналами 125![]() Артикул: 1004735 Выводной комплект Set II с плоскими каналами 125![]() Артикул: 1004736 Выводной комплект Set III с плоскими каналами 125![]() Артикул: 1004737 |
de
eng
рус

